3 Camere 1 Bagni 1 Box/Posti auto 105 m2
Caratteristiche principali
Codice
ZA75
Prezzo
1.000 EUR
Spese condominiali
1.200 EUR
Classe
F
Locali
4
Mq Box
17
Altre caratteristiche e accessori
Stato Immobile
Buono
Grado
Medio
Piano
Primo
Orientamento
Nord Ovest Sud Est
Totale Piani
Due
Lati Liberi
4
Giardino
Comune
Arredi
Solo Cucina
Tipo Soggiorno
Soggiorno
Tipo Cucina
Abitabile
Riscaldamento
Centralizzato
Tipo Riscaldam.
Caldaia
Tipo Impianto
Radiatori
Fonte Energetica
Metano
Acqua Calda
Autonoma
Raffrescamento
Split
Infissi
Legno Doppio Vetro
Serramenti
Buono
Persiana
Persiana Legno
Pavim. Giorno
Marmo
Pavim. Notte
Parquet
Pavim. Cucina
Ceramica
Pavim. Bagno
Ceramica
Cauzione
Tre Mesi
Canoni Anticipati
Un Mese
Tipo Contratto
4+4 Anni
Accesso Disabili
No
Accesso interno disabili
Non accessibile
Tipo Registr.
Cedolare Secca
Destinato a residenti
Si
VMC
No
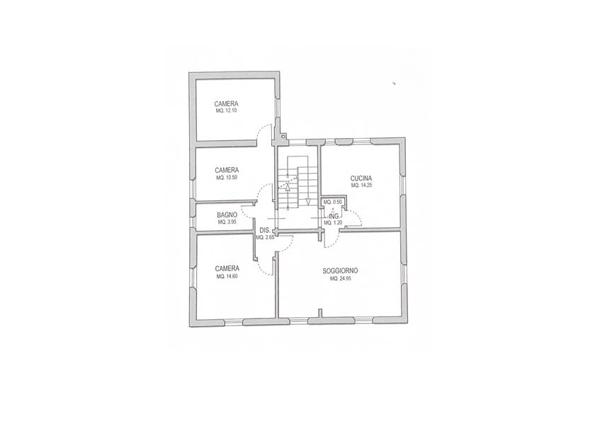
In zona Buon Pastore in abitazione con solo 3 unità abitative disponiamo di ampio appartamento posto al 1° piano senza ascensore composto da ingresso con armadio a muro, cucina abitabile arredata con angolo cottura, soggiorno, 2 camere da letto matrimoniali, studio e bagno.
Impianto di climatizzazione con split, impianto di riscaldamento centralizzato.
Completa la proprietà un garage al piano terra, una cantina/ lavanderia ed un giardino condominiale.
Per informazioni e visite contattare Vito 348 5127341
Via Della Pace , Modena (MO)
Cookie preference